3НЦ 53.22.25
Характеристики изделия:
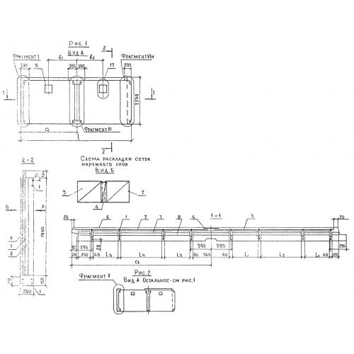
| Параметр | Значение |
|---|---|
| длина | 5295 мм |
| ширина | 250 мм |
| высота | 2230 мм |
| вес | 5300 кг |
| серия | 1.117.1-14 |
Цена:
Рассчитать стоимость3НЦ 53.22.25 Стеновые цокольные панели по серии 1.117.1-14.
| Параметр | Значение |
|---|---|
| длина | 5295 мм |
| ширина | 250 мм |
| высота | 2230 мм |
| вес | 5300 кг |
| серия | 1.117.1-14 |
3НЦ 53.22.25 Стеновые цокольные панели по серии 1.117.1-14.
