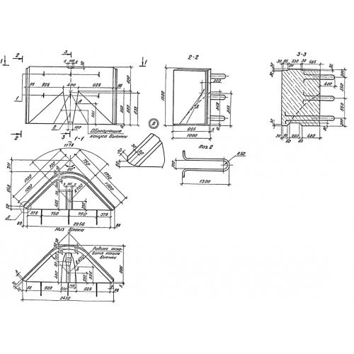
3К 17.15
Характеристики изделия:
| Параметр | Значение |
|---|---|
| длина | 2432 мм |
| ширина | 1000 мм |
| высота | 1500 мм |
| вес | 4900 кг |
| серия | 3.501.1-150 |
Цена:
Рассчитать стоимость3К 17.15 Блоки контурные концевые по серии 3.501.1-150.
| Параметр | Значение |
|---|---|
| длина | 2432 мм |
| ширина | 1000 мм |
| высота | 1500 мм |
| вес | 4900 кг |
| серия | 3.501.1-150 |
3К 17.15 Блоки контурные концевые по серии 3.501.1-150.
