П 18

Чертеж изделия:
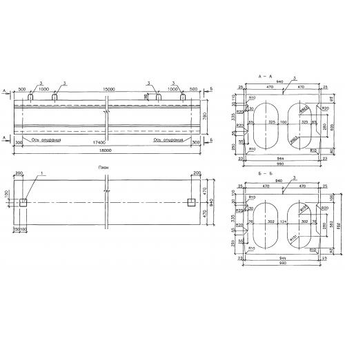
Характеристики изделия:
ПараметрЗначение
длина18000 мм
ширина990 мм
высота780 мм
вес17500 кг
серия3.503.1-108

П 18 Пустотные плиты по серии 3.503.1-108.