УПС 31

Чертеж изделия:
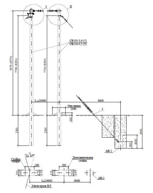
Характеристики изделия:
ПараметрЗначение
длина10370 мм
ширина205 мм
высота280 мм
масса1175 кг
нормативный документШифр 26.0085

УПС 31  Специальные угловые одноцепные опоры с оттяжкой Шифр 26.0085.